Arrow
VOTRE PROCHAIN CHEZ-VOUS

Entre nature et modernité

Au cœur du village de Bogis-Bossey, ce nouveau projet résidentiel conjugue qualité architecturale, confort moderne et cadre de vie privilégié.  Idéalement située à proximité immédiate de toutes les commodités, la « PPE La Ferme » propose trois espaces de vie distincts, pensés pour répondre aux besoins et aux attentes du plus grand nombre.   Ses 13 appartements et 3 villas contiguës offrent de nombreuses possibilités. Chaque logement bénéficie de généreux volumes, d’une belle luminosité, d’espaces privatifs ouverts sur l’extérieur et d’un parking souterrain sécurisé.  Profitez d’un environnement recherché, calme et verdoyant, aux portes de Genève et de Nyon.
Découvrez tous les détails du projet dans notre brochure de présentation.
Télécharger la brochure
White Arrow

Bogis-Bossey
À proximité de toutes les
commodités

2
min
Autoroute
4
min
Centre commercial
10
min
Gare CFF
15
min
Aéroport de Genève
Car
PPE LA FERME

Trois lieux de vie conjuguant confort et praticité

A
La Grange
Ancienne ferme de caractère, « La Grange » se réinvente aujourd’hui en un petit immeuble de 9 appartements. Chaque logement, du 2,5 au 4,5 pièces, conjugue charme authentique et confort contemporain, tout en bénéficiant d’un espace privatif ouvert sur l’extérieur  (jardin ou balcon).
DécoUVRIR
B
Le Verger
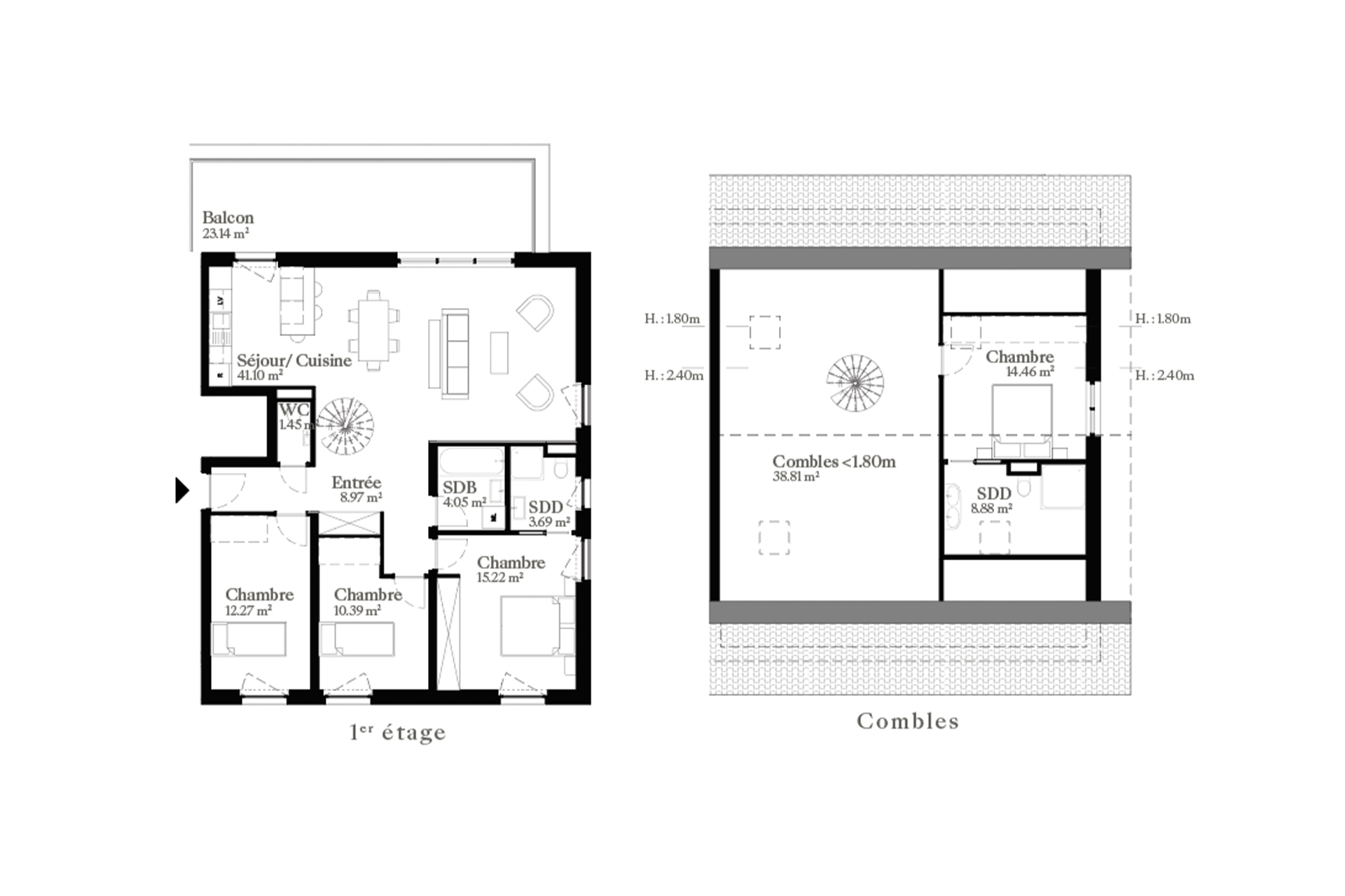
Composé de 4 appartements, cet immeuble intimiste abrite 2 logements de 3,5 pièces au rez-de-chaussée, et 2 spacieux duplex de 6 pièces au 1er étage et combles. Chaque appartement bénéficie également d’un espace ouvert sur l’extérieur (jardin ou balcon).
DécoUVRIR
C
La Prairie
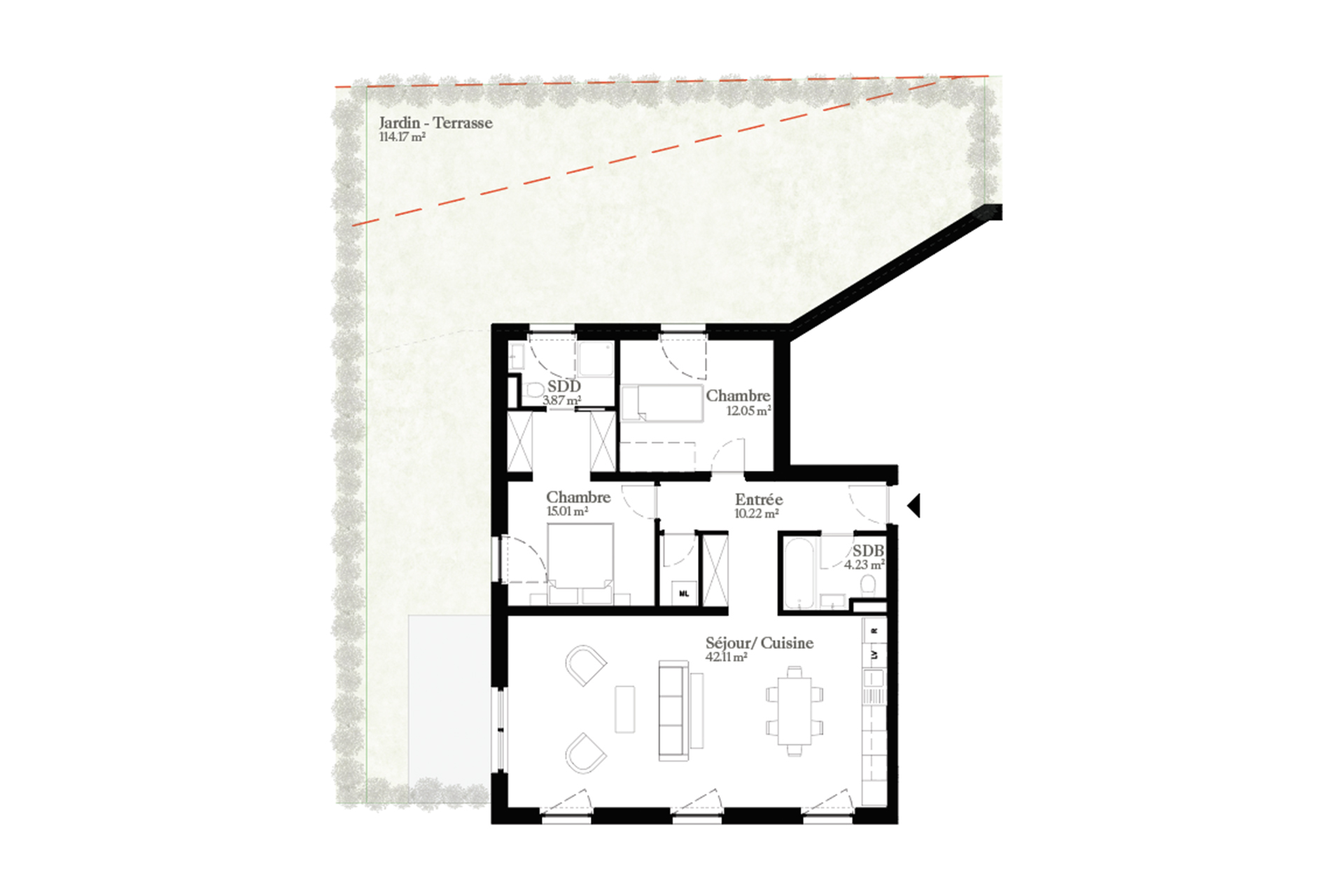
Cet espace propose 3 villas contiguës alliant confort, praticité et intimité. Construite sur 3 niveaux, chaque villa bénéficie d’un grand séjour/salle-à-manger avec cuisine ouverte et accès direct sur un jardin privatif, de 3 chambres - dont une suite parentale, de 2 salles d’eau, d’un WC visiteurs, ainsi que d’un grand sous-sol aménagé avec garage box de 2 places.
DécoUVRIR
P
Parking
Chaque acquéreur a la possibilité d’acheter une ou plusieurs places de parking avec son lot d’habitation. Pour plus d’informations, veuillez consulter la brochure de vente.

Contact

Instagram IconFacebook Icon
Valérie Morand
+41 22 307 98 81
valerie.morand@valaur.ch
Aurélie Rytz
+41 22 307 98 82
aurelie.rytz@valaur.ch
ENVOYER
Merci, votre demande de contact a bien été envoyée à nos services !
Oups ! Une erreur est survenue lors de l’envoi du formulaire. Veuillez réessayer.